Maison/Villa T4 de 88 m2 à Poulx 30320






















Caractéristiques principales
Surface totale87.6 m2
Prix au m23 139 €
Pièce(s)4
Chambre(s)3
Salle(s) de bains0
Salle(s) d'eau1
Description
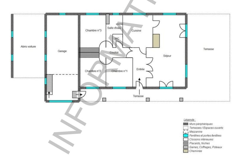
Pour toute question ou demande d'information, pensez à noter et nous communiquer le numéro de référence lors de votre appel : 21238 Homki a le privilège de vous présenter en exclusivité cette jolie maison familiale aux espaces arborés, nichée dans son écrin de verdure, en position dominante, sur les hauteurs d’un quartier paisible et recherché de Poulx. Une véritable rareté sur le marché. Depuis sa terrasse, la maison offre une vue dégagée vers l’horizon et les Cévennes. Chaque fenêtre ouvre sur des espaces verts, apportant une sensation de calme et de nature à chaque instant. Édifiée sur un terrain arboré de 993m², sans vis-à-vis, cette maison de plain-pied développe 87m² habitables, répartis sur 4 pièces. Vous profiterez également d’un garage aménagé de 38 m² avec mezzanine. Bon à savoir : les combles sont aménageables sur toute la longueur de la maison (dalle porteuse, volumes exploitables, hauteur supérieure à 1,80 m à la flêche) et disposent déjà de deux Velux. L’isolation des combles ainsi que le remplacement des menuiseries ayant été réalisés ces dernières années, la maison bénéficie d’un excellent confort thermique. Vous profiterez également d’un chauffage central au gaz, d’une cheminée avec insert ainsi que de pompes à chaleur, garantissant un confort optimal, été comme hiver, à faible coût. À l’intérieur, un dégagement dessert un séjour lumineux et climatisé de 28 m², traversant et ouvert sur les extérieurs. Sa cheminée et son ensoleillement naturel lui confèrent une ambiance chaleureuse et conviviale. Cet espace de vie s’ouvre sur une grande terrasse ensoleillée toute la journée, parfaite pour recevoir famille et amis. Attenante, une cuisine meublée de 11 m², semi-ouverte, communique directement avec le séjour. Côté nuit, un couloir climatisé dessert trois chambres de 8,50 m², 10 m² et 12 m², dont deux avec rangements et vue sur les espaces verts. Une salle d’eau rénovée récemment ainsi que des WC indépendants complètent cet espace. Côté l’extérieur, vous bénéficierez d'espaces naturel, arborés, piscinable et constructible. Laissez libre cours à vos envies pour l’aménager selon votre mode de vie et en faire un lieu unique pour toute la famille. Enfin et pour la partie pratique, la propriété offre de nombreux stationnements, dont un carport de 20 m². Les amateurs de jardinage, bricolage ou de mécanique apprécieront ce spacieux garage de 38 m², avec mezzanine, pouvant même être partiellement transformé en studio indépendant ou bien en bureau,en cabinet voir en atelier. Vous l’aurez compris : cette maison familiale, agréable, fonctionnelle et riche en atouts, n’attend plus que vous et vos valises ! Informations financières : La taxe foncière 2025 s'élève à 1114€ Diagnostic de Performance Energetique : C (172) // GES : C(18) Informations financières : La taxe foncière est de 1 114 € Qui est le Homker proche de chez vous ? Je suis Guillaume Lafont, agent commercial immatriculé au RSAC de Nîmes sous le numéro 913 342 127, et je serais ravi de vous le faire découvrir ! Qui est Homki ? Homki offre aux acquéreurs et vendeurs un service complet et transparent afin que chaque projet immobilier soit une expérience innovante vécue sereinement. Nos frais d'agence sont de 6 900 € fixes à la charge du vendeur. Estimation des coûts annuels d'énergie du logement : Montant minimum : 1 € Montant maximum : 1 € Géorisques Les informations sur les risques auxquels ce bien est exposé sont disponibles sur le site Géorisques https://www.georisques.gouv.fr/
Télécharger la fiche complète de ce bienDiagnostic énergétique
consommation
(énergie primaire)
émissions
172
kWh/m2.an
18*
kg CO2/
m2.an
C
*La commission moyenne d'une agence immobilière en France est de 5,78% de la valeur du bien vendu (selon l'autorité de la concurrence)





